C139 – Employer’s Information Questionnaire (WCB Alberta) Completed Form Examples and Samples
Find a clear, filled-out example of the C139 – Employer’s Information Questionnaire for WCB Alberta. Our sample helps Alberta employers correctly complete the form, detailing business operations, worker counts, and contractor information.
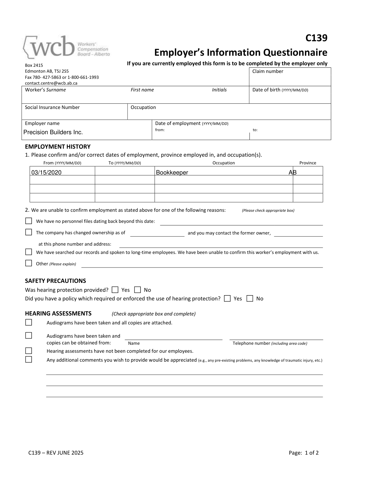
C139 – Employer’s Information Questionnaire (WCB Alberta) Example
How this form was filled:
This example shows a completed C139 Employer’s Information Questionnaire for a fictional Alberta-based construction company. It details essential information such as the business's legal and operating names, contact details, a specific description of operations, number of workers, and information regarding directors and the use of contractors.
Information used to fill out the document:
- WCB Account Number: 9876543
- Legal Name: Precision Builders Inc.
- Operating Name: Precision Builders
- Business Location: 123 Industrial Way, Calgary, AB, T2A 1B3
- Mailing Address: 123 Industrial Way, Calgary, AB, T2A 1B3
- Contact Person: Jane Smith
- Position: Bookkeeper
- Phone Number: 403-555-0101
- Email Address: [email protected]
- Business Structure: Corporation
- Date Business Started: 2020-03-15
- Description of Operations: Residential and light commercial wood framing, including installation of floor joists, wall assemblies, and roof trusses. All work is performed on-site.
- Number of Workers: 8
- Contractor Usage: Yes, using WCB-cleared subcontractors for specialized trades.
- Director Information: John Davis, President
- Signing Authority: Jane Smith, Bookkeeper
- Date of Signature: 2026-06-10
What this filled form sample shows:
- Clearly defined legal and operating names for the business.
- A specific and detailed description of business operations crucial for correct industry classification.
- Accurate reporting of the number of workers and director information.
- Declaration of contractor usage, an important factor for WCB coverage and premiums.
- Completed with a current date and proper signing authority.
Form specifications and details:
| Form Name: | C139 – Employer’s Information Questionnaire |
| Issuing Body: | Workers' Compensation Board (WCB) - Alberta |
| Jurisdiction: | Alberta, Canada |
| Use Case: | Alberta-based construction company providing updated business information to WCB. |
| Categories: | employer forms, WCB Alberta forms |
| Created: | January 31, 2026 01:14 AM |