Régie du logement Mandatory Form – LEASE of a Dwelling Completed Form Examples and Samples
View a clear, filled-out example of the mandatory Quebec residential lease form from the Tribunal administratif du logement (TAL), formerly the Régie du logement. Our sample lease agreement is a perfect guide for landlords and tenants on how to correctly complete the official 'Bail du Québec', ensuring all sections are properly filled.
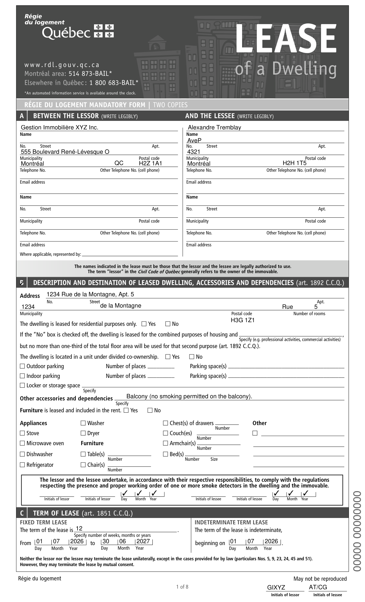
Example of a Filled Quebec Lease (TAL Mandatory Form)
How this form was filled:
This is an example of a standard 12-month residential lease for an apartment in Montréal, filled using the mandatory form from the Tribunal administratif du logement (TAL). It details two tenants, a corporate landlord, a monthly rent of $1,800, and specifies which services like heating are included and which, like electricity, are excluded.
Information used to fill out the document:
- Landlord Name: Gestion Immobilière XYZ Inc.
- Landlord Address: 555 Boulevard René-Lévesque O, Montréal, QC, H2Z 1A1
- Tenant 1 Name: Alexandre Tremblay
- Tenant 2 Name: Chloé Gagnon
- Tenants' Current Address: 4321 Avenue Papineau, Montréal, QC, H2H 1T5
- Leased Dwelling Address: 1234 Rue de la Montagne, Apt. 5, Montréal, QC, H3G 1Z1
- Lease Start Date: 2026-07-01
- Lease End Date: 2027-06-30
- Lease Term: 12 months (fixed term)
- Monthly Rent: $1,800.00
- Total Rent for the Term: $21,600.00
- Rent Due Date: The 1st day of each month
- Rent Payment Method: Interac e-Transfer
- Services Included in Rent: Heating, Hot Water
- Services Excluded (Payable by Tenant): Electricity, Internet, Cable Television
- Additional Clauses (Section G): No smoking of any kind (tobacco or cannabis) is permitted in the dwelling or on the balcony. No pets are allowed.
- Notice of Previous Rent (Section E): The lowest rent paid in the 12 months preceding the lease was $1,725.00.
- Date of Signature: 2026-05-15
What this filled form sample shows:
- Clear identification of all tenants and the landlord with their respective addresses.
- A specified fixed term of 12 months, which is standard in Quebec.
- Precise breakdown of the monthly rent and payment terms.
- Explicit list of included services (e.g., heating) and tenant responsibilities (e.g., electricity).
- Inclusion of common additional rules and conditions in Section G, such as 'no smoking' and 'no pets' clauses.
- Correctly filled Section E regarding the previous lowest rent, a mandatory disclosure in Quebec.
Form specifications and details:
| Form Name: | Lease of a Dwelling (Mandatory Form) |
| Jurisdiction: | Quebec, Canada |
| Governing Body: | Tribunal administratif du logement (TAL), formerly Régie du logement |
| Use Case: | Standard 12-month residential lease for an apartment between a corporate landlord and two co-tenants. |
| Categories: | ATO forms |
| Created: | January 30, 2026 12:12 AM |