Gallatin City-County Health Department Wastewater Treatment System Application Completed Form Examples and Samples
View filled-out examples and samples of the Gallatin City-County Health Department Wastewater Treatment System Application. Our guides help you correctly complete the septic permit form for new construction, repairs, and other projects in Gallatin County, MT.
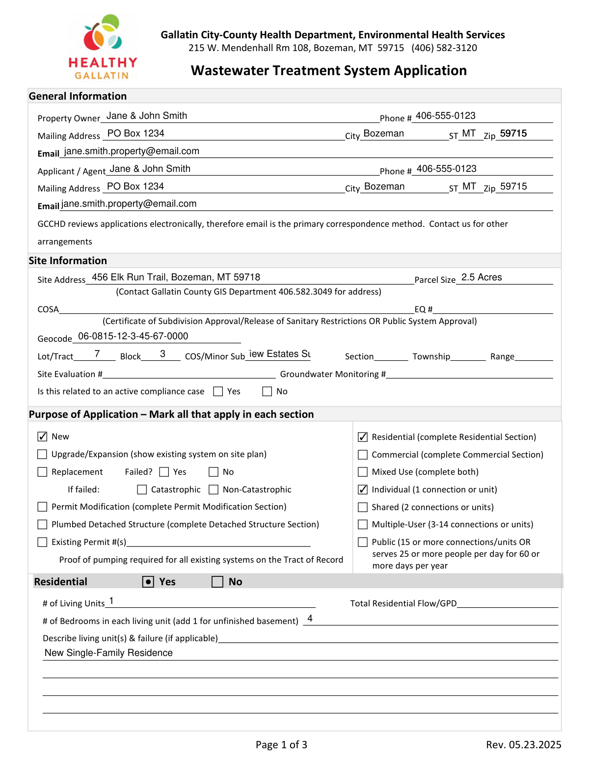
Gallatin County Wastewater System Application Example – New Home Construction
How this form was filled:
This sample shows a filled-out Gallatin City-County Wastewater Treatment System Application for a new 4-bedroom single-family home. It correctly details the applicant information, legal property description, project type (new construction), and proposed standard septic system with a well.
Information used to fill out the document:
- Applicant Name: Jane & John Smith
- Mailing Address: PO Box 1234, Bozeman, MT 59715
- Phone Number: 406-555-0123
- Email Address: [email protected]
- Property Address: 456 Elk Run Trail, Bozeman, MT 59718
- Legal Description: Lot 7, Block 3 of the Bridger View Estates Subdivision
- Geocode/Parcel Number: 06-0815-12-3-45-67-0000
- Lot Size: 2.5 Acres
- Project Type: New Single-Family Residence
- Proposed Number of Bedrooms: 4
- Water Supply Source: New Individual Well
- System Designer: Big Sky Septic Design
- System Installer: Montana Earthworks Inc.
- Proposed System Type: Standard Septic Tank & Drainfield
- Signature of Owner: Jane Smith
- Date of Application: 02/15/2026
What this filled form sample shows:
- Accurately filled Applicant Information and contact details.
- Complete Property Location and Legal Description, essential for permit processing.
- Clear project scope defined as a New Single-Family Residence with 4 bedrooms.
- Specification of a standard septic system and individual well, a common scenario in the county.
- Inclusion of licensed System Designer and Installer information.
- A correctly formatted signature and application date for 2026.
Form specifications and details:
| Use Case: | New Residential Construction (Single-Family Home) |
| Jurisdiction: | Gallatin City-County Health Department, Montana |
| Form Name: | Wastewater Treatment System Application |
| Categories: | health department forms, health forms, health treatment forms, KC Water forms |
| Created: | March 07, 2026 12:58 AM |