New York State Department of State (Division of Licensing Services) Property Condition Disclosure Statement (DOS-1614-f) Completed Form Examples and Samples
View detailed examples and samples of the New York State Property Condition Disclosure Statement (DOS-1614-f). See how to correctly fill out the form for various property conditions, helping NY home sellers and buyers navigate the real estate disclosure process.
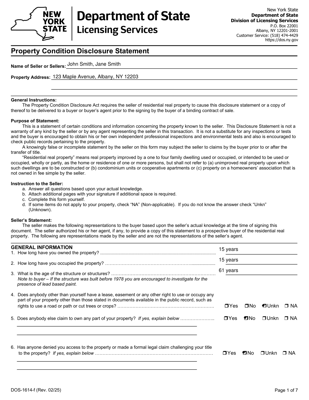
New York Property Condition Disclosure Statement (DOS-1614-f) Example
How this form was filled:
This sample DOS-1614-f form is for a single-family residence in Albany, NY. The sellers disclose a history of professionally treated termites, a removed underground fuel tank with documentation, and minor basement water seepage during heavy rain. The form is fully completed, signed, and dated for a transaction in 2026.
Information used to fill out the document:
- Property Address: 123 Maple Avenue, Albany, NY 12203
- Seller(s) Name(s): John Smith, Jane Smith
- Year Built: 1965
- Seller Occupancy Period: 2011 - 2026
- Water Source: Public
- Sewer System: Public
- Roof Age: 10 years
- HVAC System Age: 12 years, serviced annually
- Termite History: Yes, treated in 2018. Annual service contract in place.
- Basement Water Seepage: Yes, minor seepage during heavy rain events.
- Underground Fuel Tank: Yes, an oil tank was professionally removed in 2012. Removal documentation is available.
- Asbestos Presence: No Known
- Lead Plumbing: No Known
- Radon Test: Yes, test conducted in 2011, results were below EPA action levels.
- Signature Date: February 15, 2026
What this filled form sample shows:
- Comprehensive completion of all 48 disclosure questions.
- Clear disclosure of a removed underground fuel tank, a common issue in older NY homes.
- Transparent reporting of past termite infestation with details on professional treatment and an ongoing service contract.
- Honest disclosure of minor, intermittent basement water seepage.
- Accurate information on the age and condition of major systems like the roof and HVAC.
Form specifications and details:
| Use Case: | Disclosure for the sale of a single-family residential home |
| Form Name: | Property Condition Disclosure Statement |
| Form Number: | DOS-1614-f |
| Issuing Agency: | New York State Department of State, Division of Licensing Services |
| Jurisdiction: | New York, USA |
| Categories: | disclosure forms, licensing forms, NJ state forms, New York State forms, New York forms, PA state forms, property forms, state ID forms, Department of State forms |
| Created: | February 05, 2026 08:37 PM |