DBPR CILB 6-B, Application for Certified Building Contractor Who is Qualifying a Business Completed Form Examples and Samples
Find clear, filled-out examples and samples of the DBPR CILB 6-B form. Our guide helps Florida Certified Building Contractors correctly complete the Application for Qualifying a Business, ensuring compliance and avoiding common errors.
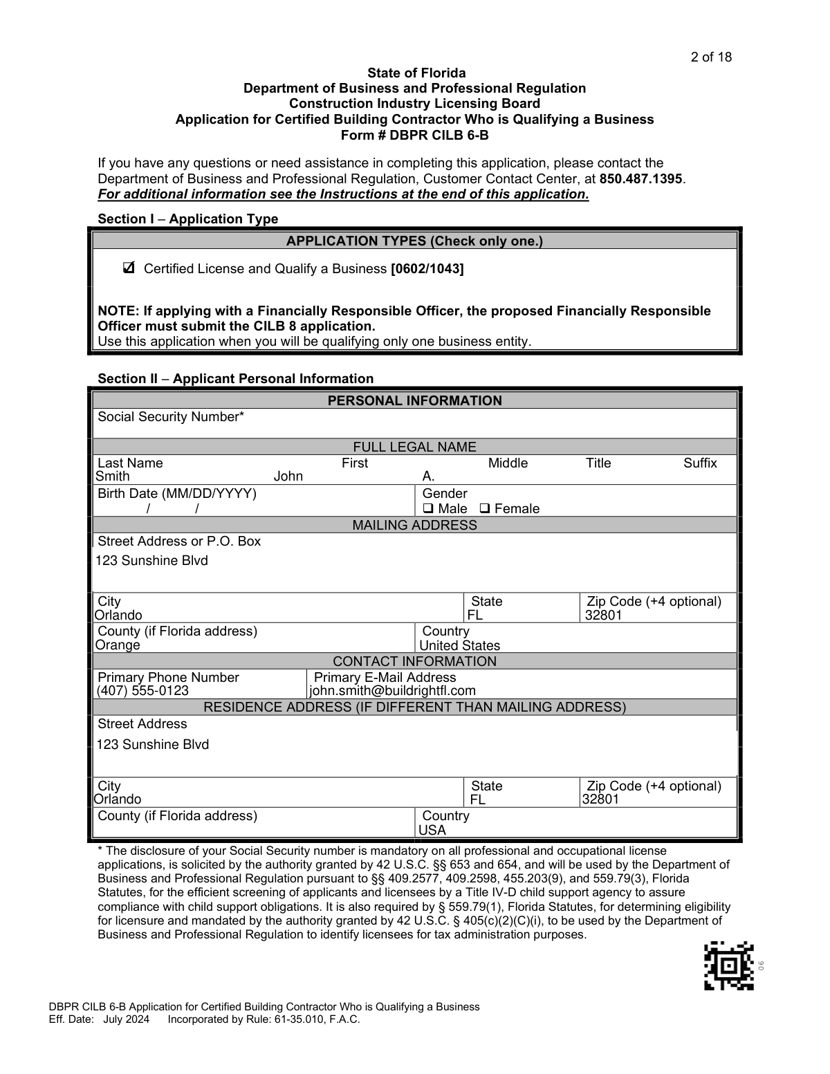
DBPR CILB 6-B Example: Qualifying a New Construction LLC
How this form was filled:
This example shows a certified building contractor, John A. Smith, applying to be the primary qualifying agent for his newly formed business, 'BuildRight Florida LLC'. The application demonstrates financial responsibility via a credit report and confirms compliance with future insurance requirements. All personal and business information is clearly detailed, including the Florida SOS Document Number and Federal Employer Identification Number (FEI/EIN).
Information used to fill out the document:
- Applicant Name: John A. Smith
- Applicant License Number: CB1234567
- Applicant Mailing Address: 123 Sunshine Blvd, Orlando, FL 32801
- Applicant Phone Number: (407) 555-0123
- Applicant Email: [email protected]
- Business Name to be Qualified: BuildRight Florida LLC
- Federal Employer ID Number (FEI/EIN): 98-7654321
- Florida SOS Document Number: L26000123456
- Date Business Began Operating: 02/15/2026
- Business Physical Address: 123 Sunshine Blvd, Orlando, FL 32801
- Qualifying Role: Primary Qualifying Agent
- Financial Responsibility Method: Submission of a personal credit report showing a FICO score of 660 or higher.
- Liability Insurance Attestation: Checked 'Yes' - Will obtain upon licensure.
- Workers' Comp Attestation: Checked 'Yes' - Will obtain upon licensure.
- Background Questions (Criminal/Disciplinary History): All answered 'No'
- Signature of Applicant: John A. Smith
- Date of Application: 05/20/2026
What this filled form sample shows:
- Correctly identifies the business entity (LLC) and its details from the Florida Division of Corporations (Sunbiz).
- Clearly indicates the applicant's role as the Primary Qualifying Agent for the business.
- Demonstrates financial responsibility using the common credit report submission method.
- Includes proper attestations for obtaining General Liability Insurance and Workers' Compensation coverage post-approval.
Form specifications and details:
| Form Name: | DBPR CILB 6-B, Application for Certified Building Contractor Who is Qualifying a Business |
| Issuing Agency: | Florida Department of Business and Professional Regulation (DBPR), Construction Industry Licensing Board (CILB) |
| Use Case: | Certified Building Contractor qualifying their own newly formed LLC as the Primary Qualifying Agent. |
| Jurisdiction: | State of Florida, USA |
| Categories: | business forms, contract forms, contractor forms, DBPR forms, CILB forms |
| Created: | February 05, 2026 09:21 PM |