Fannie Mae Residential Broker Price Opinion (BPO) (Revised 03/99) Completed Form Examples and Samples
Explore comprehensive examples and samples of the Fannie Mae Residential Broker Price Opinion (BPO) form (Revised 03/99). View a filled-out BPO template with detailed property analysis, comparable sales, market conditions, and value opinions. Ideal for real estate brokers, agents, and lenders seeking a clear guide.
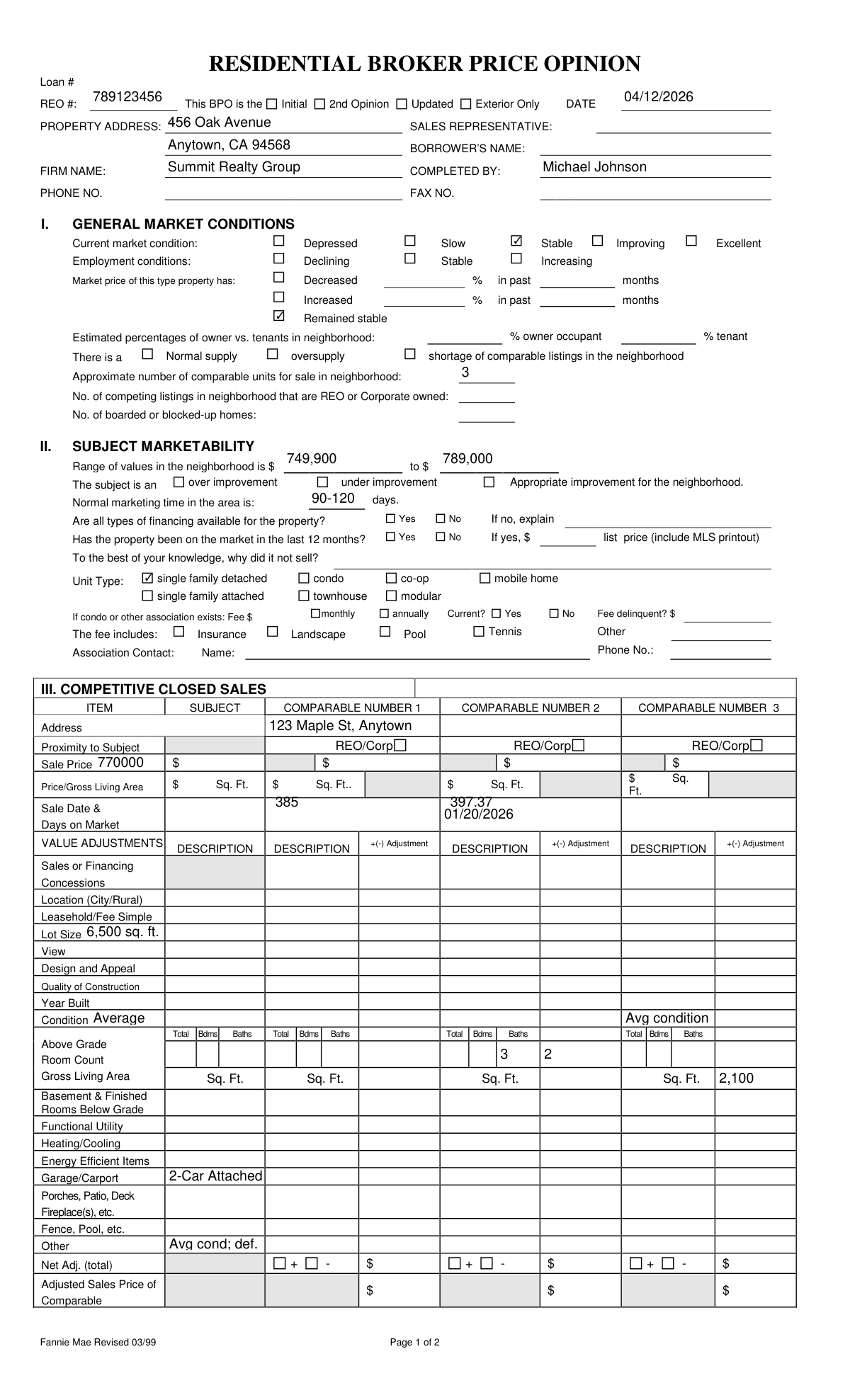
Fannie Mae Residential Broker Price Opinion (BPO) Form Example
How this form was filled:
This is a detailed example of a completed Fannie Mae Residential BPO form. It showcases a pre-foreclosure valuation for a single-family residence, including subject property details, analysis of three comparable sales and three active listings, market condition commentary, estimated repairs, and a final opinion of value.
Information used to fill out the document:
- Form Name: Fannie Mae Residential Broker Price Opinion (BPO) (Revised 03/99)
- Loan Number: 789123456
- Lender Name: First National Lending
- Broker Name: Michael Johnson
- Brokerage: Summit Realty Group
- Inspection Date: 04/10/2026
- Report Date: 04/12/2026
- Subject Property Address: 456 Oak Avenue, Anytown, CA 94568
- Owner of Public Record: Jane Smith
- Occupancy Status: Owner Occupied
- Property Type: Single Family Residence (SFR)
- Property Style: Two-Story, Traditional
- Subject Bedrooms: 3
- Subject Bathrooms: 2.5
- Subject Gross Living Area (GLA): 1,950 sq. ft.
- Subject Lot Size: 6,500 sq. ft.
- Subject Garage: 2-Car Attached
- Subject Condition: Average - Minor cosmetic updates needed.
- Neighborhood Market Trends: Stable, with 90-120 days average marketing time.
- Comparable Sale 1 Address: 123 Maple Street, Anytown, CA
- Comparable Sale 1 Price / Date: $770,000 / 02/15/2026
- Comparable Sale 1 Details: 3 Bed, 2.5 Bath, 2,000 sq. ft. Superior condition.
- Comparable Sale 2 Address: 789 Pine Lane, Anytown, CA
- Comparable Sale 2 Price / Date: $755,000 / 01/20/2026
- Comparable Sale 2 Details: 3 Bed, 2 Bath, 1,900 sq. ft. Similar condition.
- Comparable Sale 3 Address: 101 Elm Court, Anytown, CA
- Comparable Sale 3 Price / Date: $762,000 / 03/05/2026
- Comparable Sale 3 Details: 4 Bed, 2.5 Bath, 2,100 sq. ft. Average condition, larger.
- Comparable Listing 1 Address: 222 Birch Road, Anytown, CA
- Comparable Listing 1 Price / Days on Market: $775,000 / 32 DOM
- Comparable Listing 1 Details: 3 Bed, 2.5 Bath, 1,980 sq. ft. Good condition.
- Comparable Listing 2 Address: 333 Cedar Drive, Anytown, CA
- Comparable Listing 2 Price / Days on Market: $749,900 / 18 DOM
- Comparable Listing 2 Details: 3 Bed, 2 Bath, 1,925 sq. ft. Needs updating, priced aggressively.
- Comparable Listing 3 Address: 444 Spruce Way, Anytown, CA
- Comparable Listing 3 Price / Days on Market: $789,000 / 55 DOM
- Comparable Listing 3 Details: 3 Bed, 3 Bath, 2,050 sq. ft. Superior condition with pool.
- Suggested 'As-Is' Market Value: $760,000
- Suggested 'As-Is' Listing Price: $759,900
- Probable Net 'As-Is' Sales Price (90 days): $750,000
- Estimated 'As-Is' Repair Costs: $8,500 (Interior paint, new carpet, minor landscaping)
- Suggested 'As-Repaired' Market Value: $775,000
- Broker Comments: The subject property is in average condition for the area but suffers from deferred maintenance. The suggested value accounts for necessary cosmetic repairs and positions the property competitively against current listings.
What this filled form sample shows:
- Demonstrates a complete property valuation using the BPO format.
- Includes analysis of both comparable sales and active listings for a balanced view.
- Provides clear justification for the final opinion of value based on market data and property condition.
- Shows how to estimate and factor in 'as-is' repair costs and calculate an 'as-repaired' value.
- Uses realistic dates and market conditions for 2026, making the example current and relevant.
Form specifications and details:
| Form: | Fannie Mae Residential Broker Price Opinion (BPO) (Revised 03/99) |
| Use Case: | Pre-foreclosure / Short Sale Valuation |
| Property Type: | Suburban Single-Family Residence |
| Categories: | broker forms, Fannie Mae forms |
| Created: | February 03, 2026 06:00 AM |